
Over nuto architects
Nuto is een bureau dat gezien kan worden als totaalarchitect. Van concept tot vergunning en bouw. Wij focussen ons op harmonie tussen architectuur, landschap en gebruiker met de natuur. Wij ontwerpen met passie voor esthetiek en de gebruiker.


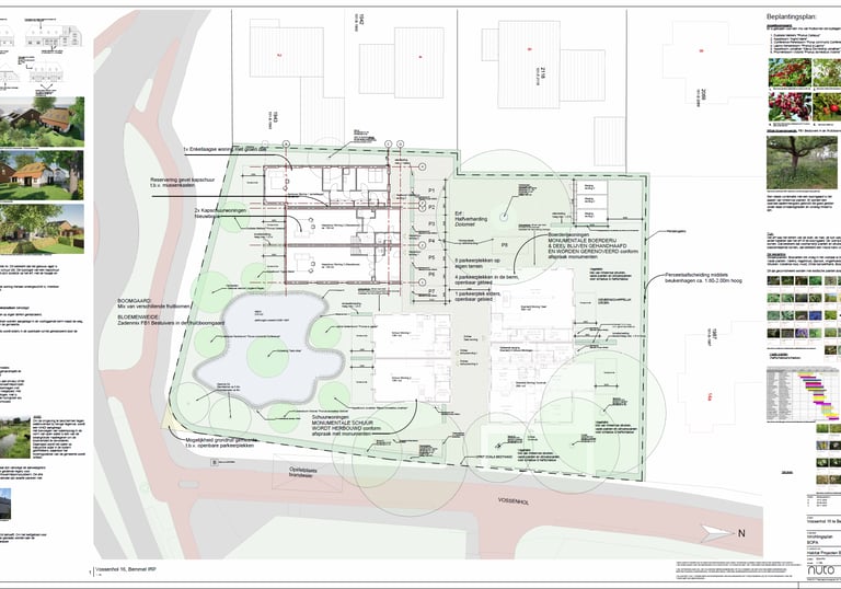
"Ook een schuur is architectuur "
Onze diensten
ARCHITECTUUR / BOUWEN
Nieuwbouw
Van ontwerp tot realisatie, met respect voor omgeving en groen.


Verbouw
Verbeter en vernieuw je woning met aandacht voor esthetiek en natuur.
Bestemmingsplanwijzigingen en vergunningen met zorg en expertise.
Vergunningen




TUINONTWERP






Ontwerp van tuinen met oog op biodiversiteit.
Gebruik van de tuin
Beplanting
Biodiversiteit
Voordat er een plan gemaakt wordt, is het belangrijk hoe de klant de tuin wil gebruiken.
Voordat er een plan gemaakt wordt, is het belangrijk hoe de klant de tuin wil gebruiken.
Contrast in bloem en blad.
Verschil in hoogte.
Verdichte borders, weinig onkruid
Welke flora&fauna is er aanwezig
Hoe kunnen we hier op inspelen?
Combinatie van inheems en exotische planten.


